
自然とつながる大きな土間のある
普通の家
DOMA
Concept
自然とつながる大きな土間のある普通の家
福井の気候風土に適した家づくりのノウハウを活かした、低価格で高性能な家づくりを実現した「自然とつながる大きな土間のある普通の家」。大きな土間と下屋がつくる中間領域により、内と外がゆるやかに連続し、田舎暮らしやアウトドアライフを楽しむ暮らしを支える。冬季には土間に陽だまりを蓄え、福井特有の気候に合わせたサステナブルな住環境を形成することで、自然と寄り添う穏やかな生活を可能にした。
本計画では日本の古民家が持つ合理性と多様性に着目し、家族の気配がどこにいても感じられる大らかな間取りを採用している。用途や細かな機能要望から住宅を閉じ込めるのではなく、時代の変化に柔軟に応える懐の深い空間としたことが特徴である。日本の住宅寿命が約30年と短い中で壊しては建て替える時代は終わりつつある。そこで本住宅は特殊な技術や素材に頼らず、身近な材料と工法を用いながら、過度に背伸びせず、飽きがこず、世代を超えて受け継がれるロングライフデザインを目指した。住宅を“所有物”ではなく“続いていく環境”として捉え、自然と人との関係を取り戻す提案である。
Works
point 1
大きな土間と下屋がつくる中間領域により、
自然とつながる、アウトドアライフを楽しむ住まい。
point 2
大きな土間に冬季の陽だまりを蓄え、
福井の気候風土に適したサステナブルな住宅を実現。
point 3
住宅の汎用性を考えた、
低価格で高性能な規格化住宅の提案。
Quality
-
¥19,800,000-
本体価格
19,800,000円(税別)~
システムキッチン・洗面・照明・エアコンを含む(別途工事・地盤改良・外構・造園・ペレットストーブ等)価格は変動いたします。 -
26.03
tsubo延床:86.09㎡(26.03坪)
構造:木造在来工法2階建
基礎:鉄筋コンクリートベタ基礎 -
Ua 0.52
UA値:0.52W/m2K
C値:0.3cm2/m2程度
予想年間光熱費:210,000円程度(オール電化住宅の場合)
耐震等級2程度 -
4people
+sohoその他
最大4人暮らし+SOHOに対応・高気密校断熱 -
simple
住む人を選ばない、住む人の個性が表現できる、シンプルで飽きのこないロングライフデザインな建築を考える。
-
small
家を小さくすると庭が広くなる。家を小さくすると家族の会話が増える。家を小さくすると質の高い住宅がつくれる。身の丈にあったこだわりの小さな家。
-
sustainable
エネルギーコストの少ない長寿命な建築を考える。
世代を超えて愛される建築を考える。 -
smart
小さくすることで土地代や建設費や税金だけでなく、家事効率やエネルギー効率の面で無駄がなくスマートな暮らしが実現。
-
happiness
自然/住宅、部屋/部屋との間につながりをつくり、風が流れ心がつながる。脱nLDKな楽しい住宅を考える。
-
flexible
欲望要望から建築をつくらず、変化することを前提とした、様々なライフステージに対応したフレキシブルなプランを考える。
-
local
雨に強い屋根材で覆った外壁。雪に強い4.5畳グリッドの架構。雨や雪の日でも安心な大きな土間空間。北陸の気候風土に適した住まいを考える。
-
4.5z grid
様々なアクティビティーを受けとめることのできる4.5畳グリッドでプランを考える。雪に強い、ムダの少ない4.5畳グリッドの架構を採用。
-
ordinary
technologyメンテナンスや増改築が誰でも簡単に行えるよう、どこにでもある普通の技術でつくる。
-
ordinary
materialメンテナンスが誰でも簡単に行えるよう、どこにでもある普通の素材でつくる。
-
passive
house光や風などの自然エネルギーを有効活用した、心地よいパッシブハウス。
-
cost
performanceローコストな住宅ではなく、高コスパな住宅を考える。
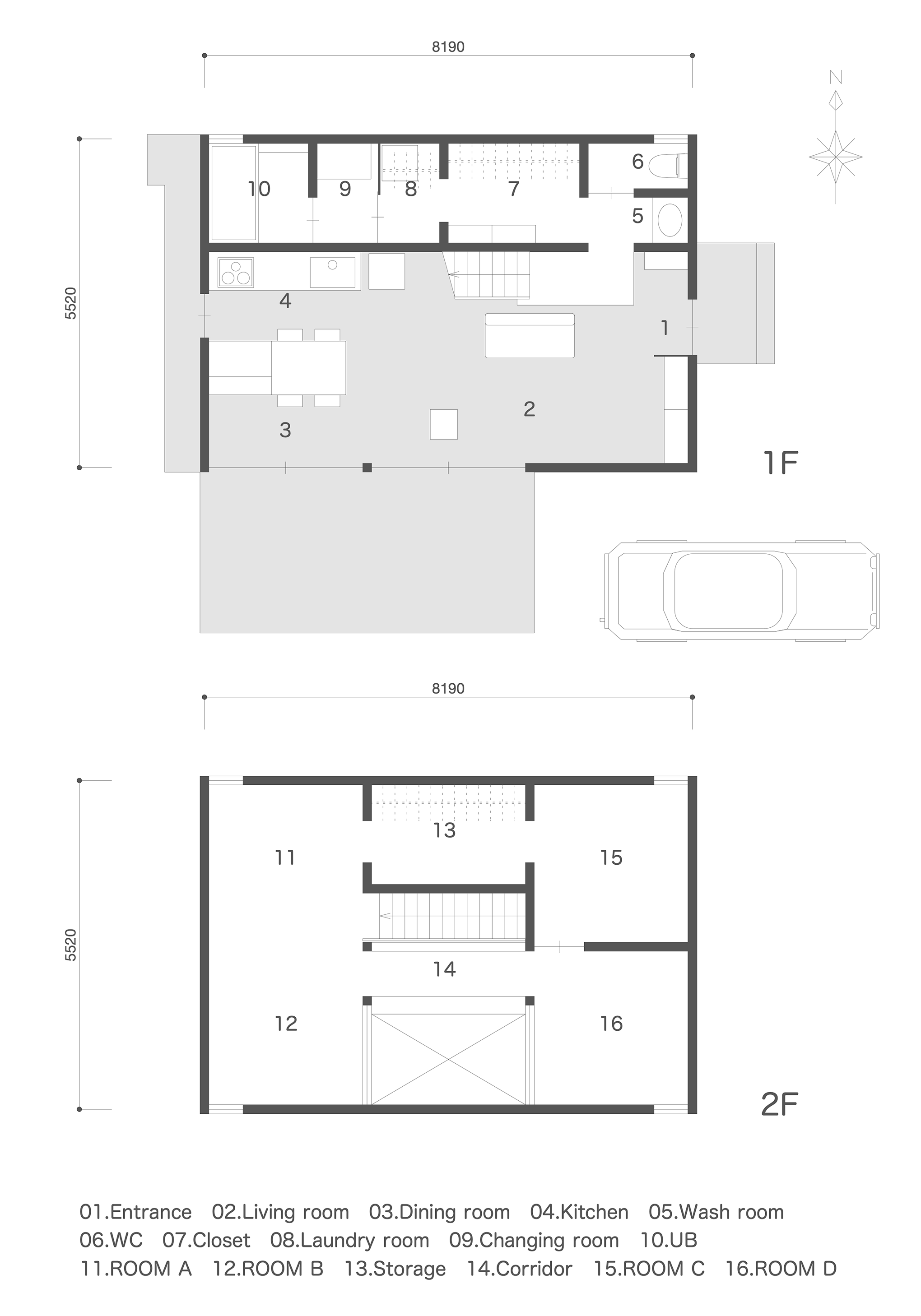
Plan

福井の気候に合わせた規格住宅とは
福井の気候や暮らし方に合わせて設計した、ローコストで長く住める規格住宅です。古民家が持っていた合理的な考え方を現代に引き継ぎ、地域にある身近な資源を活かしながら、自然とつながる暮らしが楽しめるように整えました。誰にとっても住みやすく、価格は抑えながら、性能は高く、世代を超えて愛される住まいを目指しています。
このデザインが生まれた背景
いまの住宅には、住み替えサイクルの短さ、光熱費の上昇、無秩序な景観、家計負担の増加といった課題があります。これらの課題に対して、個々の要望だけを積み重ねて家づくりを行うのではなく、古民家のように一定のルールに基づいて設計することで、機能、デザイン、性能のバランスが高まり、長く使える住まいになると考えました。福井ならではのゆとりある敷地を活かし、自然光や風を取り入れながら室内環境を整えるパッシブ設計とすることで、光熱費を抑えつつ快適に暮らせる住環境を実現しています。また、田舎暮らしやアウトドアを楽しむライフスタイルとの相性が良い点も特徴です。さらに、地域の職人と協働し、規格化された作り方を継続して改善していくことで、手の届きやすい価格帯でありながらデザイン性の高い住宅を目指しています。こうした取り組みを続けることで、地域の景観そのものも育まれていくと考えています。
新しい「古民家のルール」をつくる理由
この100年で社会、産業、素材、技術、暮らし方は大きく変化したため、古民家のルールをそのまま採用することは現実的ではありません。また、地場産材に強くこだわるとコストが上がりすぎたり、趣味性の高い設計になってしまう可能性があります。そこで、古民家が持っていた合理性を現代的に読み替え、流通、産業構造、素材の進化などの条件を踏まえながら再整理し、新しいルールとして十二項目にまとめました。このプロセスによって、従来の古民家とは異なる佇まいになりながらも、地域の資源を取り込み、自然と調和しながら生活できる現代版の古民家、いわば“土着型の規格住宅”が生まれたと考えています。








